仙台市若林区にある築48年のマンション。
最寄り駅から徒歩7分、並木が美しい通りに隣接し、商業施設や美術館、広瀬川を望む緑地も徒歩圏内に揃う快適な環境です。
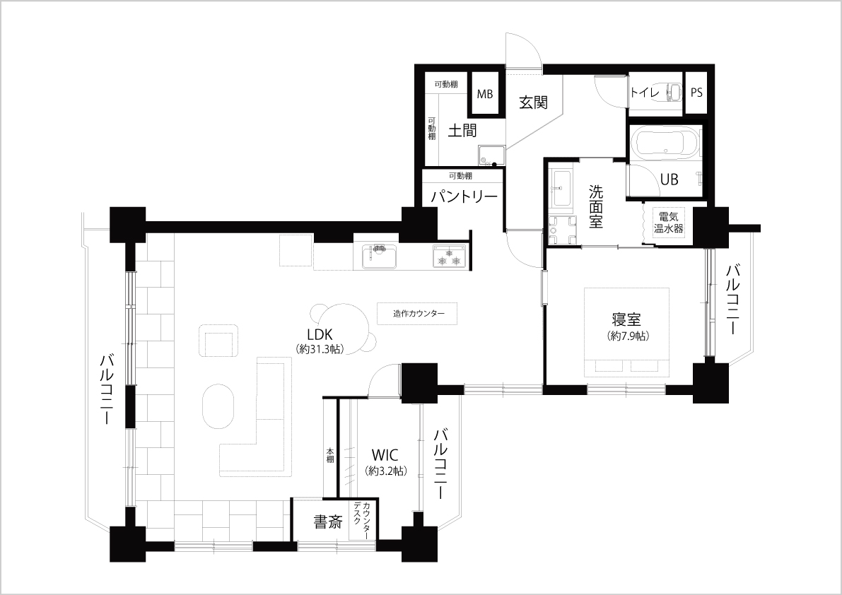
お部屋は採光面を活かしたプランにより、どこにいても光と風を感じられる設計に。広々としたリビングからは山々を望むことができ、四季折々の景色が日常を彩ります。さらに段差を抑えた計画は、人もペットも快適に過ごせる暮らしを叶えました。
天井や梁をあえて仕上げずに残したコンクリートや露出配管がラフで無骨な雰囲気をつくり、そこにフローリングや木目のキッチンを組み合わせることで温かみをプラス。
リノベーションによって、無骨さと綺麗さのコントラストが際立つ住まいが完成しました。
Photo Gallery
フォトギャラリー

























Creative Your Life
住みたいまちに、「自分らしい暮らし」を
弊社でリノベーションしたお施主様のリノベ後の暮らしについてお話をうかがいました。
リノベ暮らし








Other Story
その他のリノベ施工事例