地下鉄の最寄り駅へは徒歩10分以内、仙台駅も徒歩圏内でスーパーにも5分と利便性の高いエリア。
それにも関わらず、雄大な流れの広瀬川から自然を感じることのできるロケーション。
築年数の古いマンションであるものの、メンテナンスがしっかりとされており、広瀬川の眺望を楽しめる魅力的なお住まいのリノベーション事例です。
珍しい間取りでしたが、リノベならではの提案で全く違う形のお住まいに生まれ変わりました。
The Renovation Story
住まい探し&住まいづくりストーリー
Photo Gallery
フォトギャラリー





















Other Story
その他のリノベ施工事例
住まい探し
Story
はじめてお会いした時から、既にリノベーションに興味をお持ちだったお客さま。
今でもお会いした時のお二人の仲の良さそうな雰囲気が印象に残っています。
複数の会社を比較していただく中で、弊社ではモデルルームもあわせてご案内をさせていただき、リノベーション前の様子やリノベーション後の変化を実際に体感していただきました。
その際「安心できた」とお言葉をいただいたことも印象的でした。
お住まい探しをお手伝いしていた時、Suumoなどにまだ掲載されていない物件の中でお客さまの条件に合致しそうな物件があったため、ご案内させていただきました。
広瀬川を見渡せる眺望と立地の良さで今回のお住まいをご決断いただきました。
見学時に、うわー!っという感嘆の声をだされていたことが記憶に残っています。
広瀬川とともに四季の変化を感じ、それを楽しむことのできるお住まいになったのではないでしょうか。
住まいづくり
Design
ここからの眺望が気に入り、この物件に即決しました!とお話していたご夫婦。
この眺望を最大限に生かせる間取りになるよう注力し、プランニングさせていただきました。
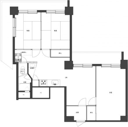
正方形を2つつなげたような特徴のある平面形状を生かし、2面採光の取れる住戸奥側を大きなLDK空間としました。
キッチンを壁付けにすることで、より広々としたリビング空間を作ることができます。
また、ご夫婦ともにお料理をされ、調理家電なども多くお持ちと伺ったので、キッチン奥にはパントリーをご提案しました。キッチンに隣接し、大容量のパントリーを設けることで細かなものもリビングから見せずにすっきりと収納することが可能になります。
リビングの一角には窓面に向かって造作のカウンターを設置。
時にはワークスペースとして、また家事カウンターとして。
週末には外の景色を楽しみながら、晩酌を交わすテーブルカウンターとしても。
眺望をおうちの中に取り込むLDKのポイントとなる空間になりました。
リビングの中央には天井吊りのプロジェクターも設置しています。
また、内装は床材のアカシアのフローリングを主役に、他はシンプルにすっきりと。
木目の表情が良い雰囲気を創り出しています。
お二人での“おうち時間”を存分に楽しむことのできる、落ち着きのある空間に仕上がりました。
リノベーションデザイナー
佐々木 葵