仙台市青葉区にある築24年のマンション。
地下鉄勾当台公園駅や国分町へも徒歩10分以内という、都市の心地よさを日常に取り込める立地です。
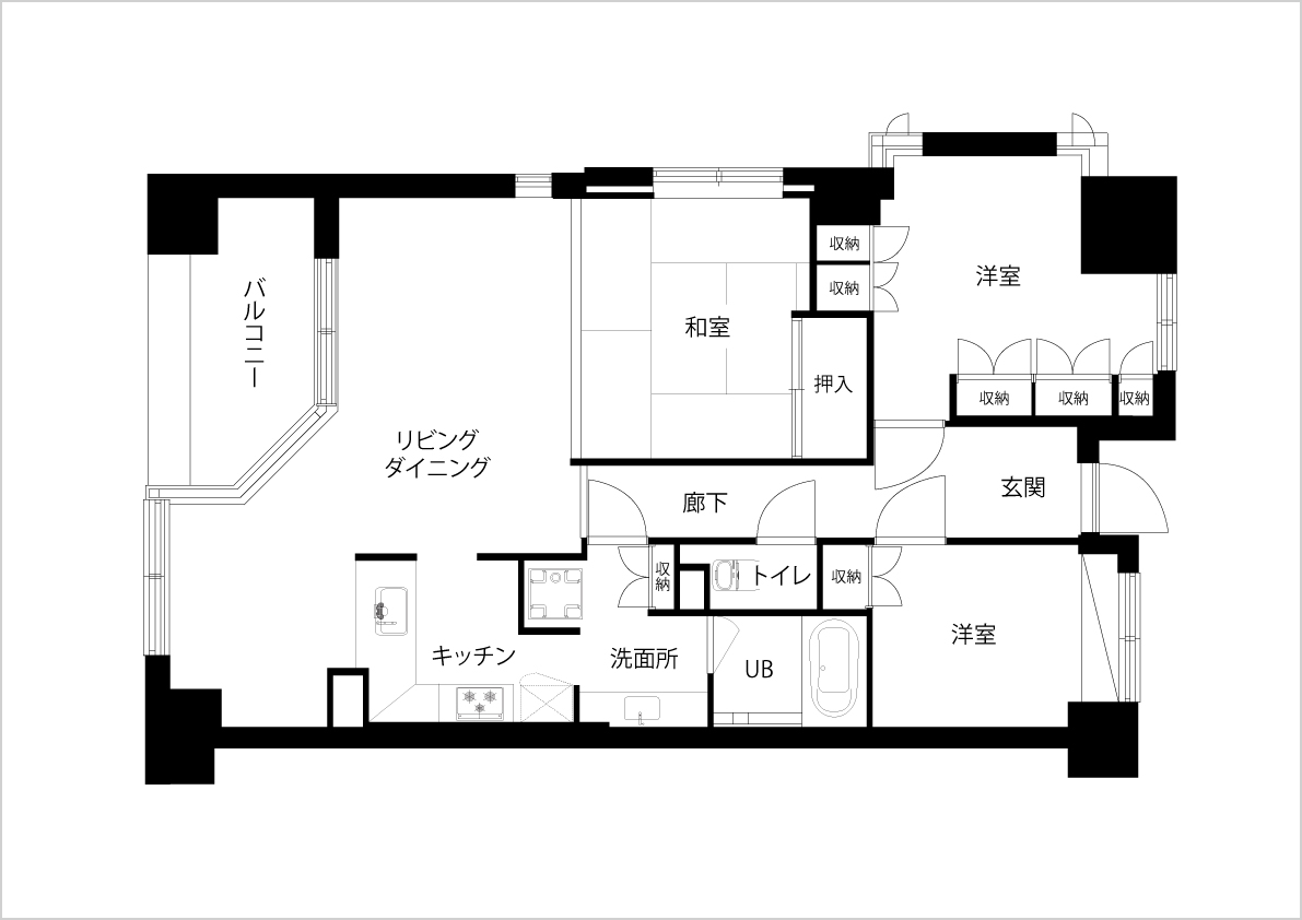
お住まいは、コンパクトな間取りでありながら、外の光を感じられる開放感を大切にし、夫婦それぞれの趣味や生活の気配がほどよく重なり合う“つながり”のある空間を計画しました。
収納は「しまう」がストレスにならないことを軸に、必要な容量と配置を丁寧に設計。
お二人のお好きなお酒や洋服がきちんと収まり、キャンプ道具など外で使うものは土間へ。用途に合わせて、収納場所を使い分けられるように工夫しています。
暮らしやすさと、自分たちらしさ。
どちらも大切にしながら、趣味を楽しむご夫婦の“好き”が自然に馴染む住まいが完成しました。
The Renovation Story
住まい探し&住まいづくりストーリー
Photo Gallery
フォトギャラリー





















Creative Your Life
住みたいまちに、「自分らしい暮らし」を
弊社でリノベーションしたお施主様のリノベ後の暮らしについてお話をうかがいました。
リノベ暮らし







Other Story
その他のリノベ施工事例
住まい探し
Story
賃貸マンションのオーナーチェンジをきっかけに、住まい探しを始めたご夫婦。
当初は街中の新築マンションなどをご覧いただいていたとのこと。
新築マンションでは以下のような部分で理想の暮らしに沿わないと、弊社にご相談にお越しいただきました。
■一般的な内装、間取りで自分たちらしい暮らしが叶わない
■そもそも新築マンションでは金額が高すぎること
既に大手不動産会社様でいくつか中古物件をご覧いただいており、気になる物件があるとのことをお伺いし、リノベーションのアドバイザーという立ち位置で物件内覧にご同行をさせていただきました。
築24年とリノベーションを検討いただくのにちょうどよいお住まいで、なおかつ青葉区の中心部の立地を存分に享受いただけるちょうど良い物件。
お客様にぴったりな物件に出会えたことが印象的でした。
また、他のリノベーション会社様でもお話を聞いていたとのことでしたが、数あるリノベーション会社の中から弊社をお選びいただたこと、はじめに「安心できそう」とのお話を頂戴したこと、今でも大変嬉しく思っております。
メンテナンスに伺った際も、リノベーションでの暮らしをお楽しんでいる様子を拝見でき、キャンプ用品を置かれた実際のスペースの使い方を参考にさせていただきました。
今後も引き続き、暮らしの様子をお伺いするのが楽しみなお住まいとなりました。
住まいづくり
Design
最初にお客様とお会いした際、アクティブで、面白いことに対して興味津々で、リノベーションを楽しんでいただけるお客様だと感じたのが印象に残っています。
お客様が心配されていた内容としては、荷物の量。
テントをはじめとするキャンプ用品やSUP(スタンドアップパドル)など、しまうべきものの場所を適切に確保できるかが課題でした。
まずは、コーディーネーターの井上とともに、お客様のご自宅へお伺いして、どのくらいの荷物があるかを一緒に確認させていただきました。
それを踏まえ、まずは収納の量をプランに落とし込み、プランニング。
その次に、住戸の形状を生かして、どのように居心地の良いリビングを作るかを一緒に検討していきました。
キッチンの向きを既存の位置から変更し、あえて壁付けにすることで真ん中のリビング空間を大きく取り、そこにダイニングテーブルも造作で設置してしまおうというご提案をさせていただきました。
造作のテーブルはキッチン側からの収納になっていたり、リビング側からはニッチ形状になっていてお酒などを入れられるようになっています。
また、お客様はお酒を自宅で楽しまれることがお好きとのことから、窓辺のカウンターのようなスペースも同時にご提案しています。
ぜひ、そのカウンターやダイニングで団らんの時間をゆっくりと過ごしていただければと思います。
今後もまた素敵なものたちが増える予感があるとおっしゃっておりましたが、その素敵なものに囲まれてお住まいになる形もきっと幸せだろうなと思いながら、おうちづくりを最後まで携わらせていただきました。
今後もご家族の居心地の良い家に育っていくことを楽しみにしております。